2 Bedroom Apartment - Purpose Built To Let

Chelsea Heights, Sheffield S11 9ER

£1,950 PCM



Property Details

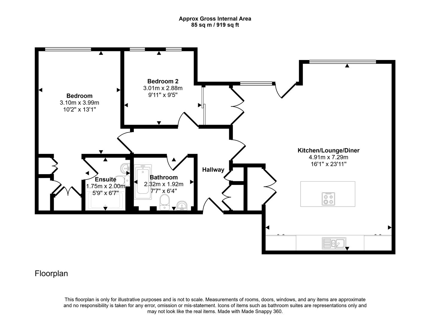
SK Estate Agents are delighted to offer to the market to let this beautifully presented two bedroom apartment situated on the second floor of this private and exclusive development situated in the highly desirable Chelsea Heights development, close to a host local shops, cafes and bars on Ecclesall Road. The development comprises an allocated, underground parking space complete with electrical charging port, communal elevator and delightful surrounding gardens. Ideally suited to professionals, this stunning apartment briefly comprises: entrance hallway, bathroom, two bedrooms, en-suite shower room, open plan living area and private balcony.
A viewing is highly advised to appreciate the high standard of accommodation on offer.

Communal Entrance

Entrance via glazed aluminium door into communal entrance hallway. Having part-tiled walls and communal carpeted stairs or lift access to the second floor.

Entrance Hallway

Entrance through timber door into entrance hallway, having vinyl tiled flooring, fitted storage and spot lighting. Also having intercom and alarm panel.

Open Plan Living Space (4.91m x 7.29m)

A fabulous space fitted with modern white high gloss kitchen with complementary quartz work surface and island incorporating five ring induction hob with induction fan above. Benefiting from fitted appliances to include double oven, dishwasher, fridge/freezer and separate washer and dryer. Having one and a half bowl sink with Quooker tap and drainer and access to balcony via aluminium double glazed door. Also having spot lighting, aluminium double glazed window, feature pendant lights to the ceiling, and storage cupboard housing gas combination boiler.
The room provides ample space for relaxing and also access to the balcony.

Bathroom (2.32m x 1.92m)

Modern fully tiled bathroom fitted with white suite comprising: bath with thermostatic shower over, vanity sink and low flush WC. Also benefiting from illuminated mirror and chrome heated towel rail.

Bedroom One (3.10m x 3.99m)

Well proportioned and neutrally decorated principal bedroom having aluminium double glazed window, carpeted flooring and spot lighting. Also benefiting from a good range of fitted storage and en-suite shower room.

En-Suite (1.75m x 2.00m)

Fully tiled and having double shower enclosure with glass sliding door and thermostatic shower, vanity sink and low flush WC. Also having chrome heated towel rail.

Bedroom Two (3.01m x 2.88m)

A further double bedroom having two aluminium double glazed windows, spot lighting and carpeted flooring. Also having fitted mirrored wardrobe.

Outside

Having use of the delightful communal gardens.
One underground parking space with electrical charging port.