3 Bedroom House - Detached Let Agreed

Holmley Lane, Coal Aston, Dronfield S18 3DA

£950 PCM



Property Details

SK Estate Agents are delighted to offer to the market for LET this well presented detached family home situated in the highly desirable neighbourhood of Coal Aston. Ideal for a professional couple or family the property briefly comprises: Entrance hallway, lounge, dining kitchen, utility room, downstairs shower room, three bedrooms, office, bathroom, driveway and garden to the rear. A viewing is highly advised to appreciate the size and standard of accommodation on offer. No pets, no smokers.

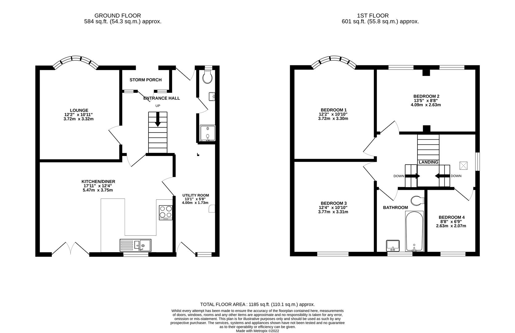
Entrance Hallway

Accessed through two separate UPVC double glazed entry doors into the large entrance hallway benefiting from gas central heating radiator, cushioned flooring and carpeted staircase rising to the first floor.

Downstairs Shower Room

A contemporary fitted suite comprising: low flush WC, vanity sink unit and shower cubicle with thermostatic shower over. Benefitting from cushioned flooring, UPVC obscured double glazed window, tiled splashbacks and heated towel rail.

Utility Room

A useful storage area with space and plumbing for a washing machine and white goods. Benefiting from cushioned flooring, gas central heating radiator and storage cupboard under stairs. Having UPVC double glazed door into the rear garden. Included: washer/dryer.

Lounge

Well presented living space made bright and sunny through large facing UPVC double glazed bay window. Having carpeted flooring, gas central heating radiator and TV point.

Dining Kitchen

A large dining kitchen with ample space for a family dining table and chairs. The kitchen benefits from a good range of wall and base units with wooden worktops incorporating stainless steel sink and drainer. Featuring rear facing UPVC double glazed window, UPVC double glazed french doors leading to decked area, cushioned flooring, ceiling coving and gas central heating radiators. Furniture included: fridge/freezer and gas cooker with hob.

Landing

A good sized carpeted landing featuring sun tube providing additional seating area with access to the first floor accommodation.

Bedroom One

A large double bedroom made bright and airy through front facing UPVC double glazed window, fitted cupboards, carpeted flooring and gas central heating radiator.

Bedroom Two

A further good sized double bedroom benefiting from laminate flooring, fitted wardrobe, gas central heating radiator and rear facing UPVC double glazed window providing views across to the Peak District.

Bedroom Three

A further extended double bedroom offering carpeted flooring, fitted wardrobes, two front facing UPVC double glazed windows and gas central heating radiator.

Office/Occasional Room

Multi-use additional space having rear facing UPVC double glazed window, gas central heating radiator and carpeted flooring.

Bathroom

A modern bathroom boasting white three piece suite comprising: panelled bath with shower over, low flush WC and vanity sink unit with chrome mixer tap. Benefiting from tiled splash-backs, gas central heating radiator, vanity cupboard and rear facing UPVC double glazed obscured window.

Outside

At the front of the property is an attractive paved driveway providing space for off-road parking for up to three vehicles.

To the rear is a good sized garden laid to lawn with easy to maintain border growing fruit and herbs, and far reaching views out to the rear. Having a good sized decking area and secure storage outbuildings (former garage / work space) which has power and light and a further secure shed.