2 Bedroom House - End Terrace For Sale

Woodseats Road, Sheffield S8 0PH

£190,000



Property Details

**OFFERS OVER £190,000**

Virtual Tour Available

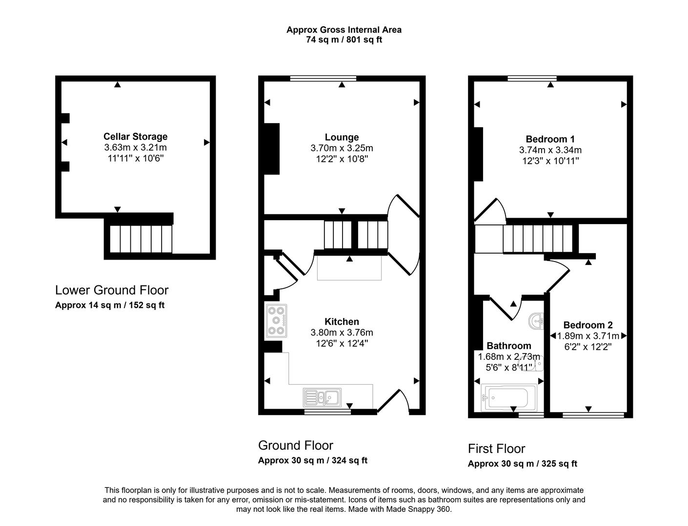
SK Estate Agents are delighted to offer to the market for sale, this attractively presented, two double bedroom terrace property. Close to all the local amenities of Woodseats and with excellent transport links to the city centre, this stunning property briefly comprises: modern kitchen, lounge, two good sized double bedrooms and family bathroom. Having gas central heating and double glazing throughout, a viewing is essential to appreciate the high standard of accommodation on offer.

Tenure: Leasehold

Lounge (3.70m x 3.25m)

Well presented front facing lounge having laminate flooring, modern vertical gas central heating radiator, composite door and UPVC double glazed window. Having feature fireplace with wooden mantle and built in shelving to the alcoves.

Dining Kitchen (3.80m x 3.76m)

Good sized dining kitchen fitted with dark blue wall and base units with wood effect roll edged work surface incorporating composite sink with mixer tap and drainer. Benefiting from integrated dishwasher, gas central heating radiator, rear facing UPVC double glazed window, UPVC part glazed door opening onto rear garden, fitted pantry and door providing access to cellar head. Having cushioned flooring, space for range cooker, space for under counter fridge and freezer and space for washing machine.

Cellar

Accessed via the kitchen and providing useful additional storage. Having power, lighting and housing the fuse board and meters.

Vestibule

Having carpeted flooring and carpeted stairs rising to first floor.

First Floor Landing

Having carpeted flooring and providing access to first floor accommodation.

Bedroom One (3.74m x 3.34m)

Good sized double bedroom having carpeted flooring, front facing UPVC double glazed window, gas central heating radiator and spotlighting to the ceiling.

Bedroom Two (1.89m x 3.71)

Rear facing and having carpeted flooring, gas central heating radiator and UPVC double glazed window. Also having additional built in storage cupboard.

Bathroom (1.68m x 2.73m)

Well presented bathroom fitted with white suite comprising: shower bath with rainwater shower, body wash and curved glass screen, low flush WC and vanity unit with large inset sink and mixer tap. Having tiled splash back, rear facing UPVC obscured glass window, cushioned flooring and chrome heated towel rail.

Outside

Well maintained enclosed rear garden boasting seating areas and area laid to lawn. Benefiting from flowering plants and a range of fruit trees and vines.